一順.遇見民宿位于湖南省湘潭縣石鼓鎮,地處氣勢磅礴的頂峰山,當地人又叫銅梁山,山脈綿延起伏環抱著銅梁水庫,依山傍水,風景優美。
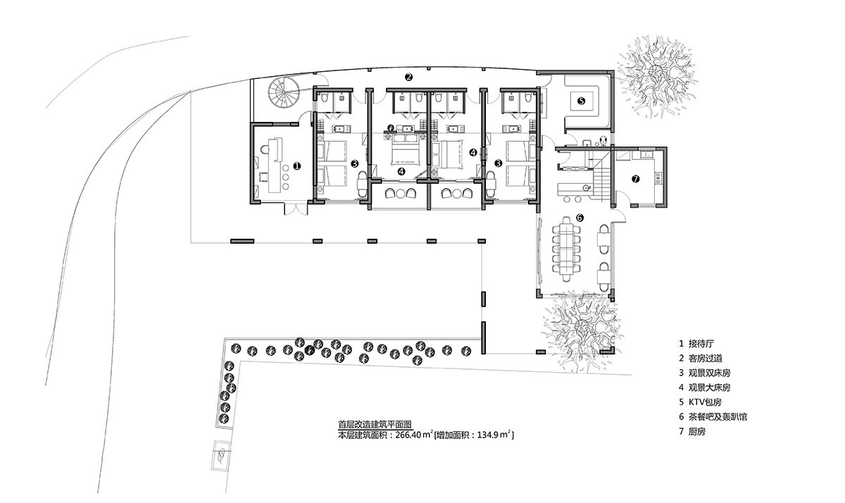
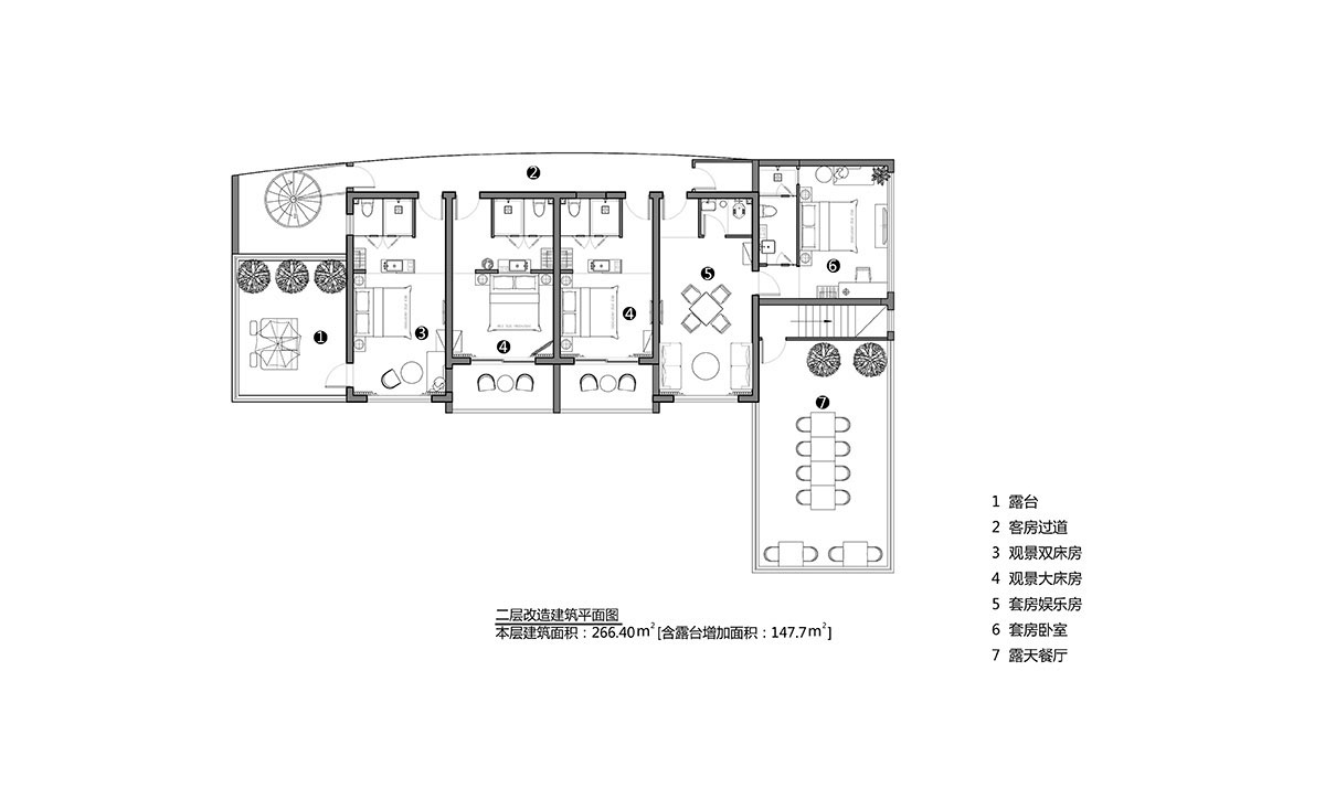
項目占地約500平方,建筑是一個90年代的廢棄農宅改造。歷經半余年,改造后的民宿由原有的主樓加新建的附屬用房樓組成,設計過程從整合的角度梳理了地理文化和自然環境、與建筑之間的關系。
本案采用簡潔純粹,返璞歸真的設計理念,最大限度保留原有磚結構建筑,主體建筑加大了原有房間的窗戶采光,做成了落地窗,讓外部環境一覽無余,呈現出天人合一般的仙境感覺。讓人逃避城市的喧囂,讓自我的心身徹底回歸自然。
加建部分建筑增加配套用房空間,為了公共空間與客房私密空間提供過渡,設計師把客房過道設在屋后,在屋前外圍加建了陽光連廊,最大限度控制人流來往帶來的影響。在尊重自然環境的前提下,設計師把原有前坪的大樹保留,把大樹融入到陽光廊道,讓建筑與周邊環境更融合。
整體外墻以漆富有肌理感的米白色真石外墻漆為主,讓建筑從外觀就給予干凈、舒適感官。
室內空間運用了當地傳統民居常用石料、木作、素水泥為主,石與木的自然紋理及質地,帶給現代人內心的情感仍然揮之不去。原石木就地取材,放棄精細加工,質樸的天然材料搭配精致的人工手作家具,在陽光或燈光的映襯下,粗礦中不乏精致和細膩。軟裝部分整個空間質樸典雅,灰色的沙發、麻料布藝、藤編、紗簾等...... 讓情境回歸変得如此的純粹,讓生活回歸它原有的樣子,讓每一位家人感受自然的樂趣,呼吸人間煙火的氣息。
青山綠水間,遇見最美好的時光,遇見最美好的遇見......











關于蕭世
新聞中心
設計案例
蕭世研究
客戶服務